2 Bed 2 Bath | 1330 Brook St #M | St. Charles IL

$1,616 $1,750
Email Agent

🏡 Firethorne Apartments – 2 Bed / 2 Bath with Fireplace, W/D & Balcony 🔥
$1,616/month (Special Price – 1 Month Free on 13-Month Lease)
- Price is calculated based on 1 month free on 13 month lease. Original price $1,750

📍 1330 Brook St #M, St. Charles IL 60174 – 3rd Floor Classic Unit
📞 CALL/TEXT 773-961-7962
🔗 Details & Photos: https://bit.ly/1330_M

Presented by Five Star Realty Services

✨ Spacious Apartment Home in Beautiful Firethorne Community

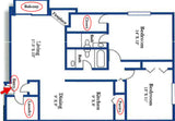
Enjoy peaceful suburban living in this bright 2 Bed / 2 Bath apartment home with generous room sizes, a cozy wood-burning fireplace, and your own private balcony. The open layout connects the large kitchen, dining area, and living room—perfect for relaxing or entertaining.

🔥 Apartment Features
✔️ Spacious kitchen with dishwasher
✔️ Open dining & living room layout
✔️ Wood-burning fireplace
✔️ In-unit washer & dryer
✔️ Large bedrooms with excellent closet space
✔️ Private balcony / patio
✔️ 1 parking space included

🌳 Community Perks
✔️ Friendly, well-maintained community
✔️ Garage parking available

📍 Great St. Charles Location
Located just off Main St (IL-64) between the Fox River and Randall Rd.

• Less than 1 mile to historic downtown St. Charles
• Restaurants, shops & entertainment nearby
• 10 minutes to Metra for easy commuting

🐾 Pets Welcome
• $300 one-time pet fee ($400 for 2)
• $50/month per pet

💰 Tenant Pays
• $95/month water, sewer & trash
• Gas & electricity
• $750 move-in fee
• Garage parking available – $100/month

📩 Get Our FREE Weekly Apartment List:
https://www.FiveStarRealtyServices.com

🏢 More Apartments:
http://FiveStarRealtyServices.com